工業鋁型材
Aluminum profile
Aluminum profile
聯系APAS / Contact us
- 地址:天津市西青經濟技術開發區賽達國際工業城A3-2.
- 郵箱:lxc@apas.com.cn
- 電話:022-87920088
- 傳真:請聯系網絡管理員
- 郵編:300385
- 咨詢熱線:13702119190(24小時服務熱線)
角鋁型材 / Angle aluminum
產品名稱 / Name
2030角鋁型材
產品描述 / Describe
2030角鋁型材主要應用于20系列、30系列鋁型材框架型材角件加工定制,需要根據技術需求進行CNC精加工處理,然后選用相應規格緊固連接件即可實現快速連接組裝,是較為常用的鋁型材配件之一;
022-87920088
可以根據需求進行設計加工,提供上門安裝服務;可以根據特殊需求進行鋁型材開模定制。
* 免費提供工業鋁型材選型手冊 →點擊咨詢
|
|
![]() ![]()
|
|
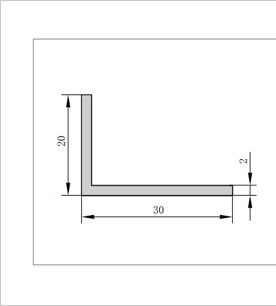
(2030角鋁型材二維參數)
|
|
規格型號
|
重量kg/m
|
慣性矩
|
慣性矩
|
彎矩
|
彎矩
|
訂貨編號
|
|
Profile
|
Weight
|
Ix(cm4)
|
Iy(cm4)
|
Wx(cm3)
|
Wy(cm3)
|
Order NO.
|
|
20×30-T2
|
0.38
|
0.46
|
2.16
|
1.44
|
4.56
|
AC-L2030-T2
|
|
2030角鋁型材材質為6063-T5系列擠壓型材,表面為銀白色,經過噴砂氧化處理,具有很高的抗氧化能力;2030角鋁型材主要用于加工鋁型材框架緊固連接件,用于20系列與30系列鋁型材框架之間的緊固連接。 |
聯系APAS/ Contact us
天津艾普斯工業鋁型材股份有限公司
聯系電話:022-87920088
企業傳真:(避免惡意廣告)請聯系該企業網絡管理員
服務熱線:13702119190 (24小時服務熱線)
Q Q:534973906
企業郵箱: lxc@apas.com.cn
企業地址:天津市西青經濟技術開發區賽達國際工業城A3-2
聯系電話:022-87920088
企業傳真:(避免惡意廣告)請聯系該企業網絡管理員
服務熱線:13702119190 (24小時服務熱線)
Q Q:534973906
企業郵箱: lxc@apas.com.cn
企業地址:天津市西青經濟技術開發區賽達國際工業城A3-2
采購意向留言:* 為必填














.jpg)
QQ咨詢
電話聯系
聯系電話

在線留言
樣冊下載
